Vorteile:
-Der Kamineinsatz ist für die Montage von Wärmekumulationsscheiben speziell angepasst
-Der Kaminkorpus und die Kaminfront sind aus Hochtemperatur-Kesselstahl
-Der Deflektor verlängert den Weg der Abgase und sorgt für eine saubere Verbrennung
-Der Einsatz ist standardmäßig mit einer dekorativen Kaminglasscheibe ausgestattet
-Der Feuerraum ist mit Termotec ausgelegt, der sechseckige Feuerraum trägt zur sauberen Verbrennung bei
-Frischluftzufuhr über Primär- und Sekundärluft
-Die mitgelieferten regulierbaren Standfüße helfen bei der Einstellung der höhe
-Eingebauter externer Luftzufuhranschluss mit Luftschieber 125 mm Durchmesser, zur Regulierung der Luftzufuhr
Technische Daten:
Modell: Kratki Lucy 16 Wasserführender-Kamineinsatz mit 16 kw
Nennwärmeleistung: 16 kW
Nennwärmeleistung Wasserseitig: 10 kw
Nennwärmeleistung Luft: 6 kw
Wärmeleistungsbereich: 7 – 19 kW
Wasserinhalt: 39 Liter
Max. Betriebsdruck: 2 bar
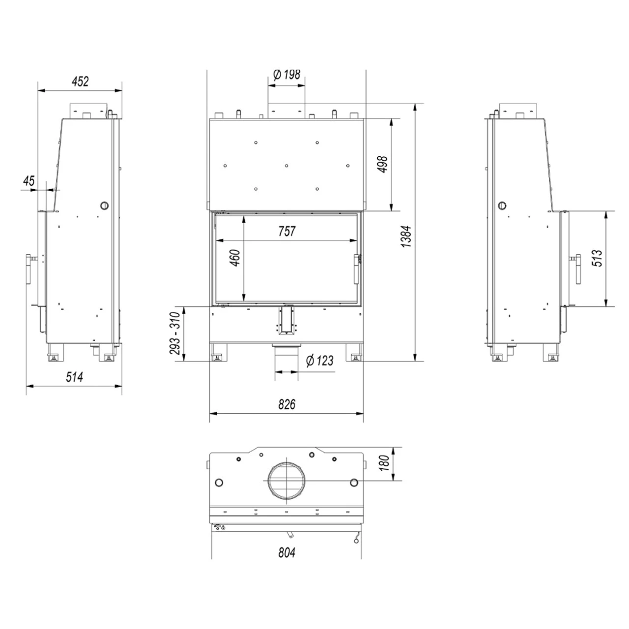
Maße des Kamins: Höhe: 138,4 cm x Breite: 82,6 cm x Tiefe: 45,2 cm
Maße der Glasscheibe: Höhe: 46,0 cm x Breite: 75,7 cm
Weitere Maße finden Sie bei den Bildern
Abstand zu brennbaren Materialien nach Vorne: 100 cm
Abstand zu brennbaren Materialien (Isolierung): mindestens 12-15 cm
Gewicht: 250 kg
Durchmesser Rauchrohr: 200 mm
Position Rauchrohr-Anschluss: oben
Durchmesser Anschluss Externe Luftzufuhr: 125 mm
Max. Scheitholzlänge: 50 cm
Brennstoff: Scheitholz, Holzbriketts
Ausstattung:
Scheibenspülung – Klare Sicht auf das Feuer – Luftstrom vor der Glasscheibe, dadurch wird die Verschmutzung der Scheibe minimiert
Anschluss für Externe Luftzufuhr – Optional anschließbar – Mit der Externen Luftzufuhr können Sie den Ofen mit Luft aus einem Nebenraum oder von außen beheizen. Dies wirkt sich positiv auf das Raumklima aus, da kein Sauerstoff aus dem Raum verbrannt wird. Der Anschluss für die Externe Luftzufuhr ermöglicht auch einen Anschluss einer elektronischen Verbrennungsluft Regelung
24 Stunden Betrieb möglich
Untergestell mit Verstellbaren Füßen
Termotec Weiß Feuerraum – Speichert die Wärme
Daten für den Schornsteinfeger:
Bauart A1 (Selbstschliessende Feuerraumtür): Optional
Bundesimmissionsschutzverordnung (BImSchV): 2. Stufe
Art. 15a B-VG (Österreich): Ja
Wirkungsgrad (Energieeffizienz): 84%
Staub: 25 mg/Nm³
CO-Emission (bei 13% O2): 0,09 % / 1124 mg/m³
Abgastemperatur: 223°C
Abgasmassenstrom: 15 g/s
Erforderlicher Druck bei Nennwärmeleistung: 12 Pa
Optionales Zubehör – gegen Aufpreis erhältlich (siehe Fotos):
4 Zusätzliche Füße / Untergestell
Blendrahmen
Griffarben in Gold oder Nickel (Standard schwarz)
Doppelverglasung
Dekorationsartikel und Rauchrohre gehören nicht zum Leistungsumfang
Wir sind nach dem aktuellen Verpackungsgesetz gemäß § 15 Abs. 1 S. 1 VerpackG dazu verpflichtet, folgende Verpackungsmaterialien von Endverbrauchern auf Wunsch unentgeltlich zurückzunehmen:
Transportverpackungen, wie etwa Paletten, Großverpackungen, etc., Verkaufs- und Umverpackungen, die nach Gebrauch typischerweise nicht bei privaten Endverbrauchern als Abfall anfallen, Verkaufs- und Umverpackungen, für die wegen Systemunverträglichkeit nach § 7 Absatz 5 eine Systembeteiligung nicht möglich ist, und Verkaufsverpackungen schadstoffhaltiger Füllgüter oder Mehrwegverpackungen.
Bei Lieferung des Produktes wird entsprechendes Verpackungsmaterial verwendet, dieses nehmen wir unentgeltlich zurück. Wir stellen damit die Rückführung des Verpackungsmaterials in den Verwertungskreislauf sicher. Durch die Aufklärung über die Rückgabemöglichkeiten sollen bessere Ergebnisse bei der Rückführung von Verpackungen erzielt werden und ein Beitrag zur Erfüllung der europäischen Verwertungsziele nach der EU-Richtlinie 94/62/EG sichergestellt werden.
Sie können das Verpackungsmaterial als Endverbraucher am Ort der tatsächlichen Übergabe oder in dessen unmittelbarer Nähe abgeben.
- Download Leistungserklärung Kratki Lucy 16 Wassergeführter Kamineinsatz
- Download Bedienungsanleitung Kratki Wassergeführte Kamineinsätze
- Fragen zum Artikel?
- Weitere Artikel von Kratki









































Rezensionen
Es gibt noch keine Rezensionen.