Sie sind handwerklich geschickt und möchten Ihren Kamineinsatz selber bauen? Dann ist ein Kaminbausatz von Hajduk die beste Möglichkeit dies zu tun! Es werden alle benötigten Materialien (siehe unten) mitgeliefert (abhängig von den Gegebenheiten vor Ort).
Die Kamineinsätze von Hajduk werden aus einer zweimanteligen Stahl konstruktion hergestellt, ohne Dichtungsmaterialien oder Schrauben, alles wird fest miteinander verschweißt. Die Feuerstelle ist mit 5 cm dicken Schamottesteinen ausgekleidet, diese speichert die Wärme und gibt diese gleichmäßig nach erlischen des Feuers wieder ab. Der Kamineinsatz ist für eine langfristige, störungsfreie und ökonomische Nutzung gebaut.
Vorteile der Kamineinsätze von HAJDUK:
- Erfüllen schwierigste Europäische Normen, EN 13240, auch die Anforderungen der BImSchV Stufe 2, Art. 5a B-VG von Österreich und LRV von der Schweiz
- Eine moderne zweimantelige Konstruktion aus Stahl
- Die Kaminhaube ist mit dem Korpus fest verbunden, ohne Dichtungsmaterialien oder Schrauben, alles Geschweißt
- Das Luftzufuhr und -Verteilungssystem Jet Stream
- Clear View – das System für automatische Scheibenreinigung
- Ein hoher thermischer Wirkungsgrad, der abhängig vom Modell bis zum 90% erreicht
- Ein aufnahmefähiger, herausnehmbarer Aschetopf
- Feuerfeste Keramikscheiben
- Wärmespeichernde Schamottsteine
- Ausführung gemäß der Europäischen Norm EN 13229 und der Norm DIN 18895, die den Verkauf von Produkten der Marke HAJDUK in ganz Europa zulassen.
Technische Daten:
Modell: Hajduk Smart 2LTH Warmluft-Eckkamineinsatz Linksverglast, rahmenlose Hebetür mit einteiligem Glas (die Tür lässt sich zum Reinigen als schwenktür öffnen)
Nennwärmeleistung: 7,5 kW
Energieeffizienzklasse: A+
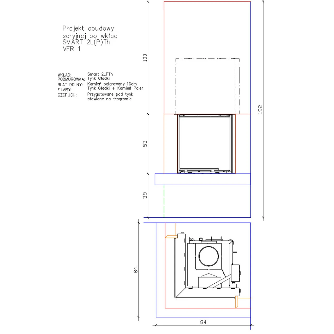
Maße des Kamineinsatzes: Höhe: 134,3 cm x Breite: 57,4 cm x Tiefe: 57,6 cm
Frontmaße: Höhe: 51,0 cm x Breite: 56,5 cm x Tiefe: 56,7 cm
Maße des Bausatzes: Höhe: 192,0 cm x Breite: 84,0 cm x Tiefe: 84,0 cm
Weitere Maße finden Sie im Downloadbereich und in den Bildern
Gewicht des Kamins: 170 kg
Gewicht des gesamten Bausatzes: ca. 320 kg
Rauchrohrstutzen Durchmesser: 180 mm
Position Rauchrohr-Anschluss: Oben
Externe Luftzufuhr Durchmesser: 150 mm
Position Anschluss Externe Luftzufuhr: Hinten
Brennstoff: Scheitholz
Holzverbrauch 2,9 kg/h
Max. Scheitholzlänge: 30 cm
Ausstattung Kamineinsatz:
Moderne zweimantelige Konstruktion aus Stahl und Schamotte
Kaminhaube mit dem Korpus fest verbunden, ohne Dichtungsmaterialien oder Schrauben, alles Geschweißt
Luftzufuhr und -Verteilungssystem Jet Stream
Clear View – System für automatische Scheibenreinigung
Herausnehmbarer Aschekasten
Feuerfeste Keramikscheiben
Einteiliges Glas
Scheibenspülung (Sekundärlüftung) – Klare Sicht auf das Feuer – Luftstrom vor der Glasscheibe, dadurch wird die Verschmutzung der Scheibe minimiert
Gusseisernes Glutrost
Aschetopf
Anschluss für Externe Luftzufuhr – Optional anschließbar – Mit der Externen Luftzufuhr können Sie den Ofen mit Luft aus einem Nebenraum oder von außen beheizen. Dies wirkt sich positiv auf das Raumklima aus, da kein Sauerstoff aus dem Raum verbrannt wird. Der Anschluss für die Externe Luftzufuhr ermöglicht auch einen Anschluss einer elektronischen Verbrennungsluft Regelung
24 Stunden Betrieb ist möglich
Ausstattung des Kaminbausatzes:
(Smart 2LTH Warmluft-Eckkamineinsatz Rahmenlose Hebetür)
Speziell angefertigte Verkleidung
Stahl Tragrahmen (siehe Bilder)
Kaminsockel (ohne Gitter)
Untersims: 10 cm mit verdeckter Umluft (im unteren Bereich ist somit kein Lüftungsgitter nötig)
Warmluftgitter im Haubenbereich der Verkleidung: 1 Stück 17 x 49 cm im Deckel der Haube (oben – nicht sichtbar) oder 2 Stück 17 x 37 cm an den Seiten der Haube – erhältlich in 7 verschiedenen Farben und 2 Varianten (siehe Bilder)
Montagematerialien: 2 Rauchrohrbögen, 1 Wandfutter, 1 Sack Kleber (25kg), 1 Rauchrohr Spiro, 4 SILCA Platten, Gips, Eckputzsteine, Fassadennetz
Steinelemente und ein Sinter wählbar aus (siehe Bilder): Nero Assoluto Poliert, Nero Assoluto geflammt, Crema Marfil, Padang Dark, Star Galaxy, Giallo Rena, Sinter Oxide Grigio, Sinter Oxide Bianco und Tan Brown
Gewicht der Baumaterialien: ca. 150 kg
Wichtig: Bei diesem Bausatz von Hajduk sind für die hintere Brandschutz-Dämmung 2 Silca-Platten mit jeweils 3 cm enthalten (entspricht einer Brandschutz-Dämmung von 6 cm hinten).
Bitte besprechen Sie vor dem Kauf mit Ihrem Schornsteinfeger, ob dieser Brandschutz für Ihr Bauvorhaben ausreichend ist, abhängig von den Gegebenheiten bei Ihnen vor Ort und ob Ihr Schornsteinfeger diesen Bausatz genehmigt.
Bitte beachten: Der Bausatz eignet sich am besten für den Aufbau an Schornsteinen welche in der Wand bündig verbaut sind. Sollte der Schornstein vor der Wand stehen, muss an den Seiten des Schornsteins eine tragende Wand gemauert werden, wo der Tragrahmen der oberen Konstruktion befestigt werden kann.
Daten für den Schornsteinfeger:
Bauart A1 selbstschließende Tür (Mehrfach Belegung des Schornsteins): Ja oder Nein, Sie können Wählen
Bundes Immisions Schutz Verordnung (BImSchV): 1. Stufe: Ja, 2. Stufe: Ja
§15a B-VG (Österreich): Ja
VKF Schweiz: Ja
CE Zeichen: Ja
Staub: 0,016 mg/Nm³
Kohlenmonoxid (CO): 1,12 g/Nm³
Wirkungsgrad: 85 %
Abgastemperatur: 220°C
Abgasmassenstrom: 7 g/s
Mindestförderdruck: 11 Pa
Lieferung:
Versand erfolgt durch Spedition mit 2 Paletten, Bordsteinkante
Dekorationsartikel gehören nicht zum Leistungsumfang
Wir sind nach dem aktuellen Verpackungsgesetz gemäß § 15 Abs. 1 S. 1 VerpackG dazu verpflichtet, folgende Verpackungsmaterialien von Endverbrauchern auf Wunsch unentgeltlich zurückzunehmen:
Transportverpackungen, wie etwa Paletten, Großverpackungen, etc., Verkaufs- und Umverpackungen, die nach Gebrauch typischerweise nicht bei privaten Endverbrauchern als Abfall anfallen, Verkaufs- und Umverpackungen, für die wegen Systemunverträglichkeit nach § 7 Absatz 5 eine Systembeteiligung nicht möglich ist, und Verkaufsverpackungen schadstoffhaltiger Füllgüter oder Mehrwegverpackungen.
Bei Lieferung des Produktes wird entsprechendes Verpackungsmaterial verwendet, dieses nehmen wir unentgeltlich zurück. Wir stellen damit die Rückführung des Verpackungsmaterials in den Verwertungskreislauf sicher. Durch die Aufklärung über die Rückgabemöglichkeiten sollen bessere Ergebnisse bei der Rückführung von Verpackungen erzielt werden und ein Beitrag zur Erfüllung der europäischen Verwertungsziele nach der EU-Richtlinie 94/62/EG sichergestellt werden.
Sie können das Verpackungsmaterial als Endverbraucher am Ort der tatsächlichen Übergabe oder in dessen unmittelbarer Nähe abgeben.
- Download Bedienungsanleitung Hajduk Smart Kamineinsätze
- Download Prüfzertifikat Hajduk Smart Kamineinsätze
- Download Aufbauanleitung Hajduk Kaminbausätze
- Download Katalog Hajduk Kamineinsätze
- Download Katalog Hajduk Kaminbausätze
- Download Maßzeichnung Hajduk Imperial Smart Kaminbausatz
- Download Aufbau und Montageanleitung IMPERIAL IMPERIAL MEDIUM IMPERIAL EXTRA
- Fragen zum Artikel?
- Weitere Artikel von Hajduk

























Rezensionen
Es gibt noch keine Rezensionen.