Heute kann man sich schwer ein modernes Haus ohne einen Kamineinsatz, der eine gemütliche Atmospäre und Familienwärme bildet, vorstellen. Diese praktische Lösung kombiniert die Ästhetik mit ökologischem Aspekte von Holzheizung.
BeF Feel – neue Modelle mit optimalisierter Leistung für Neidrigenergiehäuser, ihre geringe Tiefe ermöglicht einen platzsparenden Einbau und das grosse Scheibenformat bietet einen grossartigen Blick auf das Feuer.
Bei diesen neuen Modellen findet man viele Innovationen vor allem in: Hebesystem, Scheibenspülung, Feuerraumform und Carcondesign:
- Neues Hebesystem ermöglicht leichte und einfache Türöffnung und sorgt für geräuschlosen Betrieb. Dieses Hebesystem ist mit 2 Gewichten ausgestattet, jedes Gewicht hat eigene Führungsachse. Hoch entwickelter Pressdruck gewährleistet perfekte Dichtheit des Feuerraums.
- Weitere Invention kann man auch in Verarbeitung von Scheibenspülung finden. Die Luft ist durch Rückwand und Anheizungskammer geführt und damit wird höhere Temperatur der Zuluft für Scheibenspülung erreicht und auch ihre langsamere Strömung. Die Scheibe ist dank dieser Invention sauber. Weiterer Vorteil ist, dass die Scheibenspülung weniger für hohen Schornsteinzug anfällig ist, der heute ein weit verbreitetes Problem ist.
- Neu ist auch die Feuerraumform, die aufgrund aerodynamischen Teste konstruiert wurde. Dies sorgt für perfekte Abgasströmung. Strukturierte aktive Oberfläche der Carconsteine fängt partikuläre Teilchen mit folgender Nachverbrennung.
- Im Feuerraum gibt es massive Schicht von Akkumulationsmaterial Carcon, die nun um fast 100% massiver ist als bei älteren Modellen. Dank dieser Innovation wird der Feuerraum länger aufgewärmt gehalten und zwar bis 12 Stunden.
- Größerer Feuerraum ermöglicht komfortables Holznachlegen.
- Alle Carconsteine sind bei diesen neuen BeF Feel Modellen im Standard weiss, die Ausführung in schwarz kann man nachbestellen.
MERKMALE:
- Energieeffizienzklasse: A+;
- Nennwärmeleistung Kamineinsatz: 7 kW;
- Korpus Farbe: Schwarz;
- Kamin-Scheibenform: Eckverglaung – Links;
- Tür: Schwenktür (Klassische Türöffnung);
- Verwendete Materialien: Stahl;
- Besonderheiten Kamin: Anschluss für Externe Luftzufuhr/ Frischluftzufuhr; Höhenverstellbare Füße;
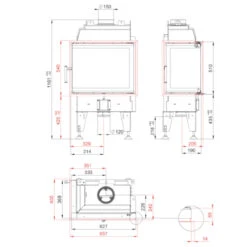
MASSE DES KAMINS:
- Höhe: 116,1 cm (+ 6,0 cm, – 4,0 cm);
- Breite: 65,7 cm;
- Tiefe: 40,0 cm;
- Gewicht: 124 kg;
SCHEIBENMASS:
- Höhe: 46,8 cm;
- Breite: 60,0 cm;
- Höhe seitlich: 46,8 cm;
- Breite seitlich: 34,0 cm;
RAUCHROHR-ANSCHLUSSDETAILS:
- Durchmesser: 150 mm;
- Position Rauchrohranschluss: Oben;
VERBRENNUNGSLUFT TYP:
- Externe Luftzufuhr: Ja, optional anschließbar, mit der Externen Luftzufuhr können Sie den Ofen mit Luft aus einem Nebenraum oder von außen beheizen. Dies wirkt sich positiv auf das Raumklima aus. Ermöglicht auch den Anschluss einer elektronischen Verbrennungsluft Regelung;
- Durchmesser Anschluss externe Luftzufuhr: 125 mm (120 mm);
- Position Anschluss externe Luftzufuhr: Unten;
- DIBt Zulassung – Raumluftunabhängiger Betrieb: Nein – jedoch teilweise möglich in Kombination mit externer Luftzufuhr, falls vorhanden und einen Sicherheitsschalter mit DIBT Zulassung;
BRENNSTOFFANGABEN:
- Zulässige Brennstoffe: Scheitholz;
- Max. Scheitholzlänge: 33 cm;
AUSSTATTUNG:
- Scheibenspülung: Ja, klare Sicht auf das Feuer – Luftstrom vor der Glasscheibe, dadurch wird die Verschmutzung der Scheibe minimiert;
- Wärmespeicherfähigkeit: Nein;
- Ein-Regler-Steuerung: Ja, die gesamte Luftzufuhr des Ofens wird über einen Regler einfach gesteuert;
- Für Dauerbetrieb geeignet (24 Std. Betrieb): Ja;
- Ascherost und Aschetopf: Ja;
- Brennraum Auskleidung: Carcon;
- Automatische Verbrennungsluftregelung: Nein;
- Luftströme: Primärluft; Sekundärluft; Tertiärluft;
SICHERHEITSABSTÄNDE ZU BRENNBAREN MATERIALIEN:
- Vorne: 100 cm;
OPTIONALES ZUBEHÖR: (gegen Aufpreis)
- 4 seitiger Blendrahmen/Einbaurahmen in Schwarz 60 mm
- 4 seitiger Blendrahmen/Einbaurahmen rostfrei 60 mm
- 4 seitiger Blendrahmen/Einbaurahmen in Schwarz 80 mm
- 4 seitiger Blendrahmen/Einbaurahmen in Schwarz 60 mm, 6 mm breit ohne Winkel
- Farbe des Carcon: schwarz gerade, schwarz abgerundet oder weiß gerade (Standard weiß abgerundet – siehe Bilder)
- Farbe des Türgriffs – Schwarz, Weiß oder Rot in Echleder (Kaltgriff)
- Versteckter Griff (kalte Hand)
- Doppelverglasung
- Konsole für Wandmontage
- Blende für Rost – Rostlose Verbrennung (Brennraum ohne Rost) – die Holz Glut liegt direkt auf dem Carconboden des Brennraumes, dadurch wird die Glut nicht so abgekühlt und führt zu einer vollständige Holzverbrennung und einem hohen Wirkungsgrad. Sie können Wählen welche Variante Sie bevorzugen
- Akkumulations-System BeF – durch das Anbringen von Speichersteinen an der Außenseite des Kamineinsatzes, haben Sie die Möglichkeit die Wärme, die der Kamineinsatz abgibt, über mehrere Stunden zu speichern, sodass diese, wenn das Feuer erloschen ist, in der Raum abgegeben wird
DATEN FÜR DEN SCHORNSTEINFEGER:
- Bauart A1 – selbstschließende Feuerraumtür (mehrfache Belegung des Schornsteins): Ja; Optional;
- Bundes-Immissionsschutzverordnung (BImSchV): 1. Stufe erfüllt; 2. Stufe erfüllt;
- Art. 15a B-VG (Österreich): Ja;
- Wirkungsgrad (Energieeffizienz): 82%;
- Staub: 18 mg/Nm³ bez. auf 13% O²;
- Kohlenmonoxid (CO): 0,0811 % bez. auf 13% O²;
- Abgastemperatur: 232°C;
- Mindestförderdruck: 12 Pa;
- Abgasmassenstrom: 6,5 g/s;
- CE Zeichen: Ja;
- Hinweis: Bitte sprechen Sie vor dem Kauf mit Ihrem zuständigen Schornsteinfegermeister. Lassen Sie Ihren Schornstein vor dem Einbau der Feuerstelle auf Verwendbarkeit prüfen. Beachten Sie außerdem die Bedienungsanleitungen und die Sicherheitsabstände.;
LIEFERDETAILS:
- Lieferkosten: Kostenlos Bordsteinkante – Deutschlandweit, außer Inseln;
- Lieferinfo: Die Lieferung erfolgt per Spedition, Bordsteinkante; Dekorationsartikel und Rauchrohre gehören nicht zum Leistungsumfang;
- Lieferung zum Aufstellort mit einem 2-Mann-Handling Service: Sprechen Sie uns hierzu gerne an;
Wir sind nach dem aktuellen Verpackungsgesetz gemäß § 15 Abs. 1 S. 1 VerpackG dazu verpflichtet, folgende Verpackungsmaterialien von Endverbrauchern auf Wunsch unentgeltlich zurückzunehmen:
Transportverpackungen, wie etwa Paletten, Großverpackungen, etc., Verkaufs- und Umverpackungen, die nach Gebrauch typischerweise nicht bei privaten Endverbrauchern als Abfall anfallen, Verkaufs- und Umverpackungen, für die wegen Systemunverträglichkeit nach § 7 Absatz 5 eine Systembeteiligung nicht möglich ist, und Verkaufsverpackungen schadstoffhaltiger Füllgüter oder Mehrwegverpackungen.
Bei Lieferung des Produktes wird entsprechendes Verpackungsmaterial verwendet, dieses nehmen wir unentgeltlich zurück. Wir stellen damit die Rückführung des Verpackungsmaterials in den Verwertungskreislauf sicher. Durch die Aufklärung über die Rückgabemöglichkeiten sollen bessere Ergebnisse bei der Rückführung von Verpackungen erzielt werden und ein Beitrag zur Erfüllung der europäischen Verwertungsziele nach der EU-Richtlinie 94/62/EG sichergestellt werden.
Sie können das Verpackungsmaterial als Endverbraucher am Ort der tatsächlichen Übergabe oder in dessen unmittelbarer Nähe abgeben.
- Download Katalog BeF Home
- Download Bedienungsanleitung BeF Warmluft Kamineinsätze
- Download Technisches Datenblatt BeF Feel 7CL Kamineinsatz
- Fragen zum Artikel?
- Weitere Artikel von BeF Home

























Rezensionen
Es gibt noch keine Rezensionen.