Technische Daten:
- Modell: BeF Home Aquatic WH450E Wasserführender Eck-Kamineinsatz 8kW
- Material: Stahl
- Türmechanismus: Schwenktür
- Nennwärmeleistung: 7,8 kW
- Nennwärmeleistung Wasserseitig: 5,8 kW
- Nennwärmeleistung Luft: 2,0 kW
- Wärmeleistungsbereich: 6 bis 8,5 kW
- Wärmeleistungsbereich Wasser: 4 bis 6,5 kW
- Gewicht: 232 kg
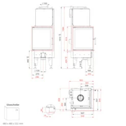
- Maße des Kamins: Höhe: 151,2 cm x Breite: 54,0 cm x Tiefe: 54,0 cm
- Maße der Glasscheibe: 2 x Höhe: 53,2 cm x Breite: 48,0 x 48,0 cm
- Durchmesser Rauchrohr-Anschluss: 150 mm
- Position Rauchrohr-Anschluss: Oben
- Durchmesser Anschluss Externe Luftzufuhr: 125 mm
- Position Anschluss Externe Luftzufuhr: Unten
- Brennstoff: Scheitholz und Holzbriketts
- Maximale Scheitholzlänge: 33 cm
- Stündlicher Abbrand: 2,2 kg/h
Ausstattung:
- Scheibenspülung – Klare Sicht auf das Feuer – Luftstrom vor der Glasscheibe, dadurch wird die Verschmutzung der Scheibe minimiert
- Anschluss für Externe Luftzufuhr – Optional anschließbar – Mit der Externen Luftzufuhr können Sie den Ofen mit Luft aus einem Nebenraum oder von außen beheizen. Dies wirkt sich positiv auf das Raumklima aus, da kein Sauerstoff aus dem Raum verbrannt wird. Der Anschluss für die Externe Luftzufuhr ermöglicht auch einen Anschluss einer elektronischen Verbrennungsluft Regelung
- Rahmenlose Designscheibe – Die Glasscheibe befindet sich vor dem Rahmen, dadurch wirkt die Glasscheibe größer und der Kamineinsatz eleganter
- 24 Stunden Betrieb möglich
- Ascherost und umfangreichen Aschetopf aus Gusseisen ODER Blende für das Ascherost – Rostlose Verbrennung (Brennraum ohne Rost) – die Holz Glut liegt direkt auf dem Carconboden des Brennraumes, dadurch wird die Glut nicht so abgekühlt und führt zu einer vollständige Holzverbrennung und einem hohen Wirkungsgrad. Sie können Wählen welche Variante Sie bevorzugen.
- Brennraumauskleidung aus Carcon (Standard Weiß)
- Integrierter und Isolierter Kupferwärmetauscher
- 1-Regler Steuerung – Die gesamte Luftzufuhr des Ofens wir über ein Regler einfach gesteuert
- Maximaler Betriebsdruck: 2 bar
- Integrierter Sicherheitswärmetauscher
- Doppelverglasung: dank der Doppelverglasung wird weniger Wärme in den Raum abgegeben und wodurch sich die Wärmeübertragung in das Wassersystem erhöht.
Optionales Zubehör:
- 4 seitiger Blendrahmen/Einbaurahmen in Schwarz 60 mm
- 4 seitiger Blendrahmen/Einbaurahmen rostfrei 60 mm
- 4 seitiger Blendrahmen/Einbaurahmen in Schwarz 80 mm
- 4 seitiger Blendrahmen/Einbaurahmen in Schwarz 60 mm, 6 mm breit ohne Winkel
- Carcon in Schwarz (Innenraumauskleidung)
- Versteckter Griff
- Farbe des Türgriffs – Schwarz, Weiß oder Rot in Echleder (Kaltgriff)
Daten für den Schornsteinfeger:
- Bauart A1 – selbstschließende Feuerraumtür (mehrfache Belegung des Schornsteins): Ja
- Bundesimmissionsschutzverordnung (BImSchV): 2. Stufe
- §15a B-VG (Österreich): Ja
- CE Zeichen: Ja
- Staub im Rauchgas (bei 13% O2): 26 mg/Nm³
- CO-Emission (bei 13% O2): 0,1%, 0,07%
- Wirkungsgrad (Energieeffizienz): 83%
- Abgastemperatur: 230°C
- Abgasmassenstrom: 7,8 g/s
- Erforderlicher Druck bei Nennwärmeleistung (Mindestförderdruck): 10 Pa
- Bitte sprechen Sie vor dem Kauf mit Ihrem zuständigen Schornsteinfegermeister. Lassen Sie Ihren Schornstein vor dem Einbau der Feuerstelle auf Verwendbarkeit prüfen. Beachten Sie außerdem die Bedienungsanleitungen und die Sicherheitsabstände.
Dekorationsartikel und Rauchrohre gehören nicht zum Leistungsumfang
Wir sind nach dem aktuellen Verpackungsgesetz gemäß § 15 Abs. 1 S. 1 VerpackG dazu verpflichtet, folgende Verpackungsmaterialien von Endverbrauchern auf Wunsch unentgeltlich zurückzunehmen:
Transportverpackungen, wie etwa Paletten, Großverpackungen, etc., Verkaufs- und Umverpackungen, die nach Gebrauch typischerweise nicht bei privaten Endverbrauchern als Abfall anfallen, Verkaufs- und Umverpackungen, für die wegen Systemunverträglichkeit nach § 7 Absatz 5 eine Systembeteiligung nicht möglich ist, und Verkaufsverpackungen schadstoffhaltiger Füllgüter oder Mehrwegverpackungen.
Bei Lieferung des Produktes wird entsprechendes Verpackungsmaterial verwendet, dieses nehmen wir unentgeltlich zurück. Wir stellen damit die Rückführung des Verpackungsmaterials in den Verwertungskreislauf sicher. Durch die Aufklärung über die Rückgabemöglichkeiten sollen bessere Ergebnisse bei der Rückführung von Verpackungen erzielt werden und ein Beitrag zur Erfüllung der europäischen Verwertungsziele nach der EU-Richtlinie 94/62/EG sichergestellt werden.
Sie können das Verpackungsmaterial als Endverbraucher am Ort der tatsächlichen Übergabe oder in dessen unmittelbarer Nähe abgeben.
- Download Bedienungsanleitung BeF Wasserführende Kamineinsätze
- Download Katalog BeF Home
- Download Technische Daten und Masszeichnung BeF Aquatic WH450E
- Fragen zum Artikel?
- Weitere Artikel von BeF Home





























Rezensionen
Es gibt noch keine Rezensionen.